產品介紹
高精度聚結脫水濾油機 HLYC-J系列
產品應用
●汽輪機油及變壓器油的凈化
●液壓潤滑系統油的除水及除雜質過濾
●接入液壓潤滑系統全面提高系統的清潔度
產品說明
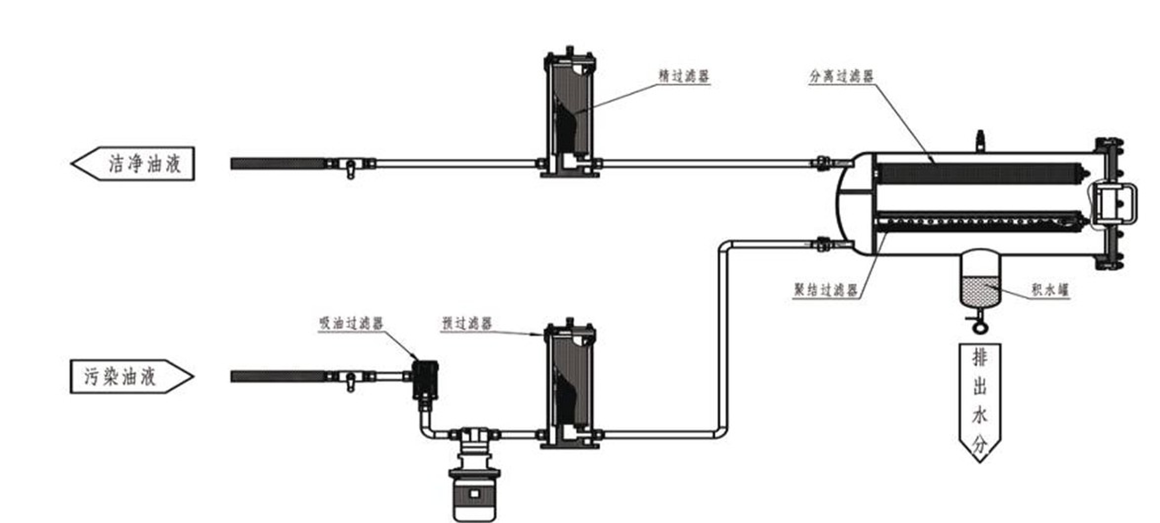
液壓潤滑系統中水的存在會引起油液氧化,使油液變質,減小油膜厚度,降低潤滑性,引起油液變性聚合而形成大分子,使油液粘度改變,形成有機酸,進而腐蝕金屬表面,降低或喪失油液的介電強度。對于傳統的過濾與分離設備,從相互混雜在一起的一種液體中分離出另一種液體尤為困難,我公司研制的聚結分離式濾油機集精密過濾和高校脫水為一體,可有效清除油液中的顆粒雜質和乳化水,游離水,而不損害元產品的品質。對于含大量水分的油液,其分離效果尤為顯著,分離速度是傳統速度的幾倍到幾十倍。

技術原理
不同的液體有著不同的表面張力,而液體流過小孔時,表面張力越小,所通過的速率就越快,
當不同的混合液體流入分離器后,首先進入聚結濾芯,聚結濾芯具有多層過濾介質,其孔徑逐層遞增。由于表面張力的差異,油液快速通過濾層,而水卻緩慢的多;又由于聚結濾芯采用親水性材料,微小的水滴更是吸附在濾層表面從而造成水滴的聚結。受動能的作用,小液滴競相通過開孔,逐漸匯成大的液滴,并在重力作用下沉降而與油液分離,通過聚結濾芯后的油液,仍有尺寸較小的水珠在慣性作用下向前至分離濾芯處。分離濾芯由特殊的疏水材料制成,在油液通過分離濾芯時,水珠被擋在分離濾芯的外面,而油液則通過分離濾芯,并從出口排出。

系統特點:
集精密過濾及高效脫水兩種功能為一體,應用先進的“聚結分離”技術進行脫水,脫水效率高、能力強,尤其對油液中大量的水進行分離,具有真空法、離心法無法比擬的優點,可破除介質中全部的油水乳化結構;通過顆粒過濾系統的過濾,可將介質的清潔度,穩定地控制在系統要求狀態,以保證油液的清潔度;不改變油液的物理、化學性質,延長油液的使用壽命;能耗小,運行費用低;系統配置優良,連續工作性能強,適合在線運行

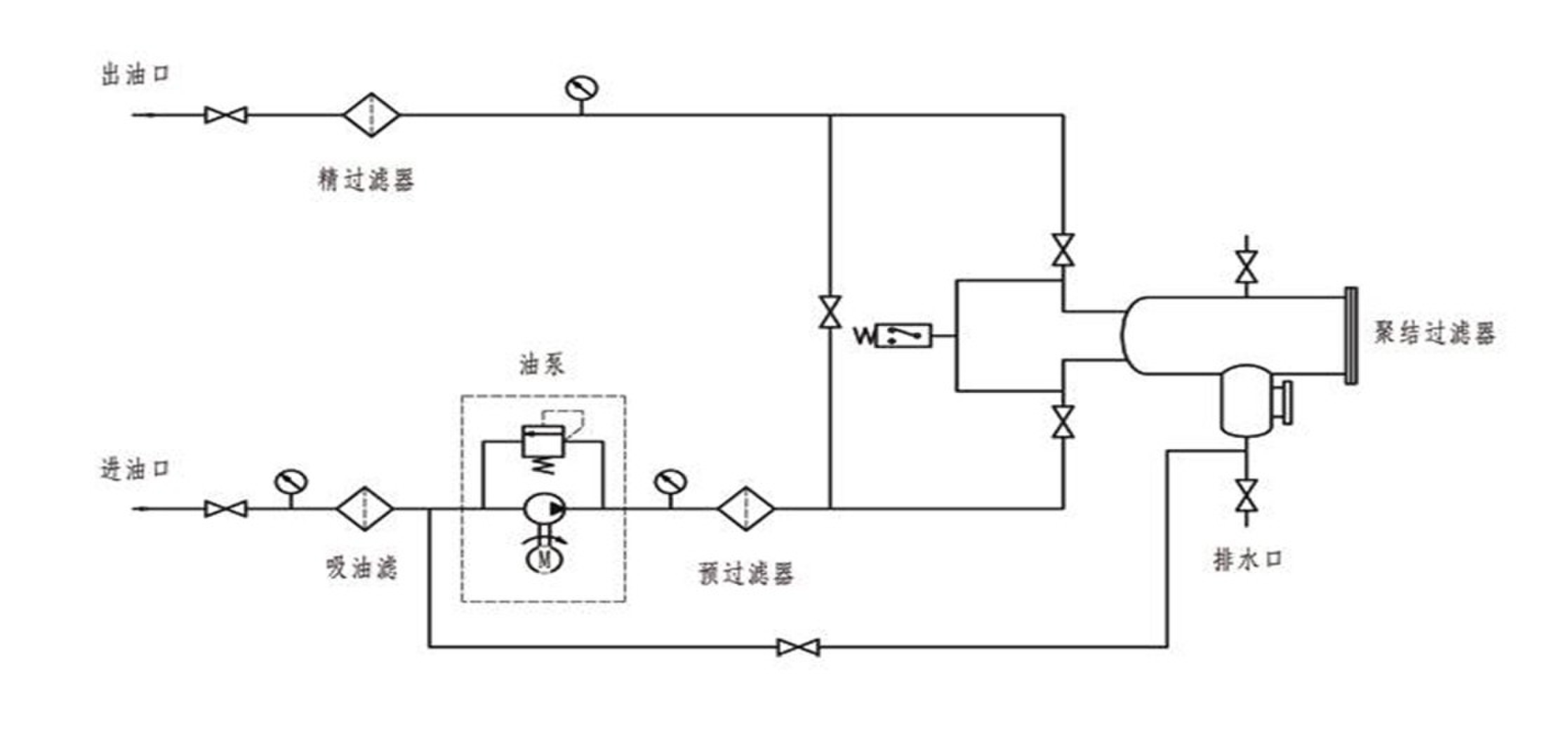
顆粒過濾系統:
采用高效濾材做過濾介質,超大過濾面積設計,可有效地濾除極細微的顆粒雜質,使油品達到很高的清潔度。
聚結系統:
聚結系統由一組聚結濾芯組成,聚結濾芯采用了獨特的極性分子結構,油液中的游離水及乳化水在通過濾芯后,被聚結成較大的水滴,再依靠重力的作用下沉降至儲水罐內。
分離系統:
分離系統的分離濾芯由特殊的疏水材料制成,油液通過濾芯時,水珠被擋在濾芯的外表面,相互聚結直至因重力作用,沉降至儲水罐內。
排水系統:
分離出來的水份儲存在儲水罐內,當界面高度到達到設定值時,打開閥門將水排出,直至降到下液面,關閉閥門,停止排水。

技術參數
| 型號 | HLYC-25J-*/** | HLYC-50J-*/** | HLYC-100J-*/** | HLYC-200J-*/** |
| 額定流量 L/min | 25 | 50 | 100 | 200 |
| 額定壓力 Mpa | 0.6 | |||
| 原始壓力損失 Mpa | ≤0.1 | |||
| 泵前過濾精度μm | 100 | |||
| 一級過濾精度μm | 10、20、40 | |||
| 二級過濾精度μm | 3、5、10 | |||
| 電機功率Kw | 0.75 | 1.1 | 2.2 | 5.5 |
| 電壓 V | AC 380V三相 | |||
| 重量 Kg | 200 | 300 | 420 | 860 |
| 外形尺寸 | 1200 X600 X1200 | 1600 X880 X1400 | 1800 X1060 X1500 | 2 |
新鄉市華豫濾器有限公司專業生產替代國外進口PALL頗爾濾芯、HYDAC賀德克濾芯、MAHLE瑪勒濾芯、PARKER派克濾芯、ARGO雅格濾芯、FILTREC富卓濾芯、STAUFF西德福濾芯、VICKERS威格士濾芯、EPPENSTEINER(EPE)濾芯、TAISEI KOGYO大生濾芯、INTERNORMEN英德諾曼濾芯、MANN曼濾芯、DONALDSON唐納森濾芯和MP-FILTRI翡翠濾芯等進53E3等產品。真誠地希望與您合作!
產品優勢
納污量大
選用優質進口濾材,單位面積過濾材料所能容納的顆粒污染的質量高,納污量大,使用壽命長。
過濾精度穩定
先進的加工工藝,減少濾材在折波加工中因機械力產生的破損,保障濾芯過濾精度穩定均一。
結構完整性高
多次通過標準ISO2942:2004試驗,濾芯不存在影響其過濾精度評定結果的結構缺陷。確保精度與實際精度水平一致。
出廠檢驗嚴格
原材料、半成品、成品完整嚴格的產品出廠檢驗流程,出廠產品實行全檢,確保產品出廠品質。
相關產品
我要留言
如果您有什么需求或者疑問,請您留言,我們收到后會盡快給您答復!
24小時服務熱線:0373-2611789
技術部服務熱線:0373-2638798
服務貼心! 制造精心! 價格稱心! 客戶放心!
以客戶為導向為客戶提供解決方案
以服務為核心多方位服務于客戶
以質量為主要為客戶打造值得信賴的產品
